Nature du projet : construction d’une terrasse
Etat : chiffrage en cours
Localisation : Saubion (40)
Surface : 60m2
Redonner vie à la terrasse, entre chaleur et matière
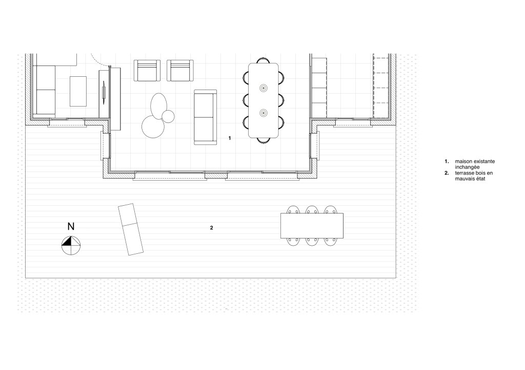
Orientées plein sud, les pièces de vie de la maison s’ouvrent sur une vaste terrasse qui prolonge l’intérieur vers le jardin. Avec le temps, le bois s’est abîmé, les lames ont perdu leur éclat, et cet espace, autrefois central, s’est peu à peu effacé des usages du quotidien.
Les propriétaires ont souhaité lui redonner sa place : un lieu chaleureux, vivant, accueillant. Le choix s’est naturellement porté vers une terrasse en pavés de terre cuite. Un matériau noble et pérenne, aux nuances chaudes, qui dialogue avec la lumière du sud et renforce le caractère de la maison.
Ce nouvel écrin minéral se déploie en plusieurs séquences. On y circule, on s’y attarde, selon l’heure et l’envie. La zone repas, ombragée par des toiles tendues, s’ancre dans un espace bien défini, rythmé par la construction d’une banquette maçonnée : un point d’ancrage, à la fois simple et convivial, autour duquel s’organise la vie en extérieur. La terrasse n’est plus seulement un sol, mais une véritable pièce à ciel ouvert, qui retrouve sa générosité.





PHOTOS DE L’EXISTANT



